
| Address | 21 Kirvin Hill Rathnew, A67 HN24 |
|---|---|
| Price | Last listed at Asking price €460,000 |
| Style | Semi-detached House |
| Bedrooms | 3 |
| Receptions | 1 |
| Bathrooms | 3 |
| Size | 99 sq. metres |
| BER Rating |
BER
A2
|
| Status | Sale Agreed |
| PSRA License No. | 002719 |
* This information does not contain all of the details you need to choose a mortgage. Make sure you read the key facts illustration provided with your mortgage offer before you make a decision.
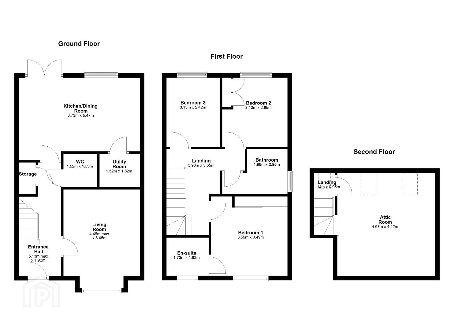
21 Kirvin Hill is an exceptional A2-rated, three-bedroom semi-detached home with an additional attic room, presented in truly turnkey condition. The current owners have invested significantly in tasteful upgrades throughout, including stylish wall panelling, clever built-in storage, and a beautifully finished attic room offering superb flexibility as a home office, study, or children’s den. Set in a prime position within this popular and well-maintained development, the property further benefits from a generous, south-west facing landscaped rear garden, enjoying excellent privacy and an ideal aspect for afternoon and evening sun.
On the ground floor, the layout is ideal for modern family living. A bright entrance hall with attractive panelling and a contemporary tiled finish sets the tone, leading to a comfortable living room to the front featuring a striking media wall and bespoke-style joinery. To the rear, a spacious kitchen/dining room forms the heart of the home, with sleek cabinetry, timber worktops, and double doors opening directly onto the patio and garden. The ground floor also benefits from underfloor heating throughout, providing an efficient and comfortable living environment.
A separate utility room, guest WC, and additional storage are neatly tucked away off the main hall ensuring the home functions just as well practically as it does aesthetically.
Upstairs, there are three well-proportioned bedrooms, including a main bedroom with en-suite, along with a stylish family bathroom. The attic room is a real bonus, constructed by the original builders to maintain consistency in quality, finish, and great energy efficiency. This space offers valuable additional accommodation that can easily adapt as needs change over time.
Kirvin Hill is a well-established and highly regarded development in Rathnew, particularly popular with families due to its safe, mature setting and strong sense of community. The area is exceptionally well served by schools, with a choice of respected primary schools nearby including Rathnew National School and St Coens, along with easy access to secondary schools in Wicklow Town such as East Glendalough School and Coláiste Chill Mhantáin. Local shops, cafés, sporting facilities, and childcare services are all close at hand, making day-to-day life straightforward and convenient. For commuters, the N11/M11 is just minutes away, providing excellent connectivity north and south, while Wicklow Town offers a full range of additional amenities along with mainline rail and bus services. The coastline, beaches, coastal walks, and the Wicklow Mountains National Park are all within easy reach, making this an ideal location for those seeking a balance between practical family living and an active outdoor lifestyle.
| BER Rating: |
BER
A2
|
|---|---|
| BER No.: | 109135343 |
| Energy Performance Indicator: | 43.81 kWh/m²/yr |
Fill in your details below and a member of our team will get back to you.
4
3
1,340 sq. feet
Asking price
€450,000
80 Saunders Lane
Rathnew,
A67
XT04
4 Bed Semi-detached House