| Address | Hill Rise, Barniskey, Ballinvalley Lower, Avoca, Y14 T282 |
|---|---|
| Price | Last listed at Asking price €540,000 |
| Style | Detached House |
| Bedrooms | 4 |
| Bathrooms | 5 |
| Size | 2,702 sq. feet |
| BER Rating |
BER
B2
|
| Status | Sale Agreed |
| PSRA License No. | 002719 |
* This information does not contain all of the details you need to choose a mortgage. Make sure you read the key facts illustration provided with your mortgage offer before you make a decision.
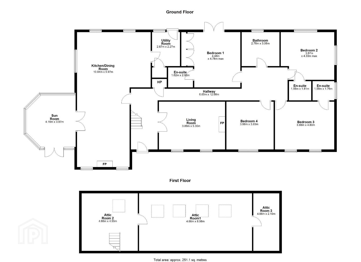
Forkin Earls are delighted to bring to market, Hill Rise, which is a beautifully presented, spacious family home, and extends to a roomy 251.1sq.m. (2,700 sq.ft) of versatile well laid out accommodation, ideal for busy family living.
This fine home offers particularly generous sized rooms with an impressive light filled entrance hall, a comfortable living room with feature open fireplace, a wonderful L-shaped kitchen opening to the superb dining area with feature stove, double doors opening out to a spacious and bright sunroom, a utility area and Guest WC & WHB. There are 4 double Bedrooms, three ensuite (2 of which are unfinished) and a contemporary family Bathroom completes the ground floor accommodation. At first floor and off the landing are two large attic rooms with velux windows which can easily be converted and are suitable to a variety of uses.
For people who want to have the country feeling but still want to be within easy reach of all conveniences, this property is perfect as it is ideally located, whilst being only a few minute’s drive from the beautiful village of Redcross and Avoca, the property is only a couple of kilometres drive from nearby Arklow town and its amenities which includes Bridgewater Shopping Centre as well as excellent supermarkets, main street shopping, churches, schools, shops, restaurants, cinema, leisure facilities, beach, swimming pool, golf course, etc, and the added benefit of easy access to the ever-improving main M11 Motorway Dublin – Rosslare route being only 5 minutes’ drive away, both Cherrywood and Dundrum being only c. 50 minutes’ drive away and Dublin City just an hour away. Dublin and Wexford are also an easy commute via the Wexford to Dublin Airport Bus and commuter train service in Arklow.
Viewings are highly recommended and strictly by appointment!
| BER Rating: |
BER
B2
|
|---|---|
| BER No.: | 118159516 |
| Energy Performance Indicator: | 123.82 kWh/m²/yr |
Fill in your details below and a member of our team will get back to you.
5
3
178 sq. metres
Asking price
€645,000
The Ferns, 2 Barnabawn Road
Glenealy,
A67
CD34
5 Bed Detached Bungalow
